Zum Inhalt springen

Neuer WMS-Dienst zur Koordinatenqualität von gültigen Grenzpunkten

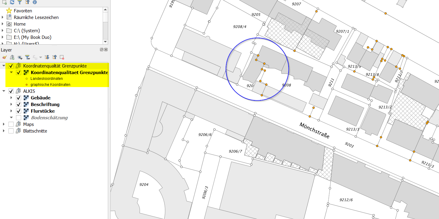
eingebundener WMS-Dienst
Datum:
7. Jan. 2025
Von:
Christiane Klingelhöller

Für Wen und Wofür?:
Vermessungsbüros, Vermessungsämter, aber auch Baufirmen können diesen Dienst nutzen - kurz: alle die mit Katastervermessungen zu tun haben.

Was und Wie?:

  • Der Dienst visualisiert die Koordinatenqualität von Grenzpunkten.
  • Landeskoordinaten werden mit einem weiß gefüllten Kreis dargestellt, graphische Koordinaten mit einem orange gefüllten Kreis.
  • Der Dienst kann einfach als Layer oberhalb der Katastergraphik eingebunden werden.
  • Er ermöglicht so ein einfaches Einbinden des Darstellungsdienstes in ein Arbeitsplatz-GIS, ein mobiles GIS oder WMS-fähigen Außendienst-Client, kann aber ebenso auch bei Bedarf wieder ausgeblendet werden.
  • Es sind keine zusätzlichen Abfragen oder Klicks erforderlich. Somit schafft der neue WMS-Dienst Soforthilfe für den Innen- und Außendienst und liefert immer aktuelle Daten, amtlich und hochpräzise.

Weitere Informationen finden Sie hier: https://www.lgl-bw.de/Produkte/Open-Data/